Με σταθερά βήματα συνεχίζεται η χωρική αναβάθμιση του πολιτισμού στα Τρίκαλα. Οι αποθήκες του Δήμου (που παλιότερα ανήκαν στην ΕΑΣΤ), οδεύουν προς αξιοποίηση, μέσω της προκήρυξης της εκπόνησης της σχετικής μελέτης.
Το έργο ονομάζεται «ΕΠΑΝΑΧΡΗΣΗ ΣΥΓΚΡΟΤΗΜΑΤΟΣ ΑΠΟΘΗΚΩΝ Δ. ΤΡΙΚΚΑΙΩΝ ΣΕ ΠΟΛΥΧΩΡΟ ΤΕΧΝΗΣ ΚΑΙ ΠΟΛΙΤΙΣΜΟΥ» και η πρόταση είχε υποβληθεί από τον Δήμο Τρικκαίων τον Ιανουάριο του 2018.
Το πρώτο βήμα ήταν η έγκριση της χρηματοδότησής του στις 26 Ιουνίου 2018, από το πρόγραμμα «Ανταγωνιστικότητα Επιχειρηματικότητα και Καινοτομία», με προϋπολογισμό 1.900.000€.
Πέντε μήνες μετά, στις 26 Νοεμβρίου 2018, έγινε το δεύτερο βήμα. Η αρμόδια υπηρεσία διαχείρισης του εν λόγω προγράμματος, ενέκρινε τα τεύχη δημοπράτησης του πρώτου υποέργου, που ονομάζεται «Οριστική Αρχιτεκτονική, Στατική και Η/Μ Μελέτη για το έργο με τίτλο “ΕΠΑΝΑΧΡΗΣΗ ΣΥΓΚΡΟΤΗΜΑΤΟΣ ΑΠΟΘΗΚΩΝ Δ. ΤΡΙΚΚΑΙΩΝ ΣΕ ΠΟΛΥΧΩΡΟ ΤΕΧΝΗΣ ΚΑΙ ΠΟΛΙΤΙΣΜΟΥ“».
Επομένως, άμεσα ο Δήμος Τρικκαίων προκηρύσσει τον διαγωνισμό για το πρώτο από τα τρία υποέργα, με προϋπολογισμό 272.371,32€ συμπεριλαμβανομένου ΦΠΑ).
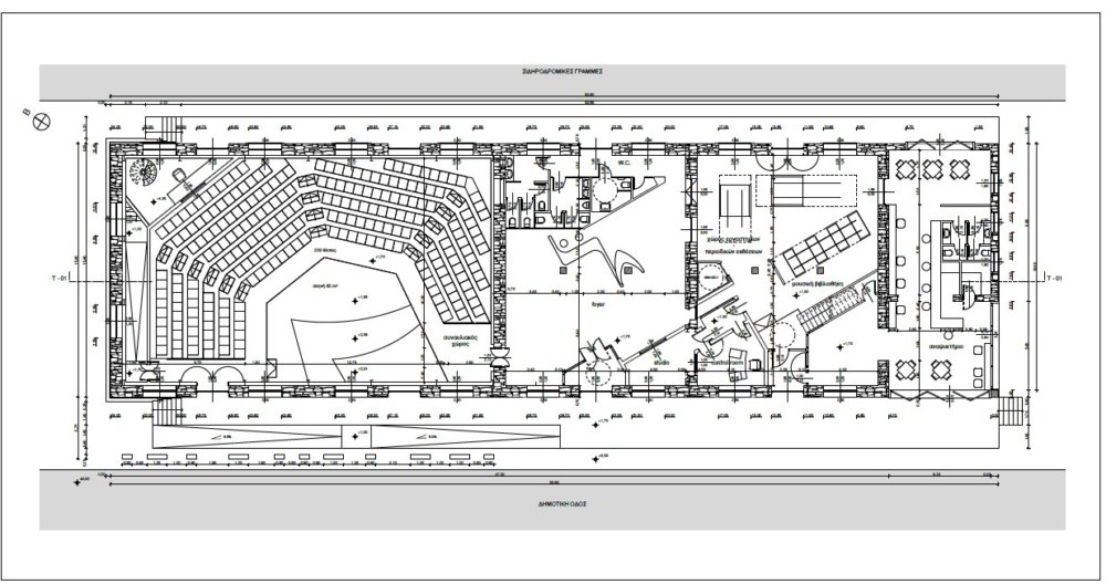
Η μελέτη θα δείξει τον τρόπο επανάχρησης των δύο αποθηκών απέναντι από τον σταθμό του ΟΣΕ.
Οι αποθήκες, συνολικού εμβαδού 1.760 τ.μ., περιήλθαν σταδιακά – μέχρι το 2017 – στον Δήμο, ακριβώς με στόχο να υλοποιηθεί ο σχεδιασμός για επανεκκίνηση στην πολιτιστική παρέμβαση.
Με την ολοκλήρωση της μελέτης, θα προχωρήσουν τα άλλα δύο έργα:
– Επανάχρηση Συγκροτήματος Αποθηκών Δ. Τρικκαίων σε Πολυχώρο Τέχνης και Πολιτισμού, με όλες τις απαραίτητες εργασίες στις δύο αποθήκες.
Στη μία αποθήκη, εμβαδού 830,06 μ2:
1. θα γίνονται ποικίλες μουσικές εκδηλώσεις,
2. δημιουργείται θεματική μουσική βιβλιοθήκη,
3. δημιουργείται χώρος για τη μετεγκατάσταση και λειτουργία της Δημοτικής Φιλαρμονικής και της Συμφωνικής Ορχήστρας Νέων Τρικάλων,
4. δημουργείται διαδραστικό μουσικό θεματικό εργαστήρι εκπαιδευτικού χαρακτήρα, studio ηχογράφησης και control room, τουαλέτες και αναψυκτήριο.
Η αίθουσα αυτή θα παραχωρείται από τον Δήμο σε θεσμοθετημένους φορείς της πόλης και των χωριών για την από κοινού τέλεση αντίστοιχων εκδηλώσεων.
Στη δεύτερη αποθήκη, εμβαδού 927,56 m2, δημιουργείται χώρος μόνιμης στέγασης των εκθεμάτων της Δημοτικής Πινακοθήκης που βρίσκονται διάσπαρτα σε κτήρια του Δήμου.
-. Ενέργειες προβολής και προώθησης του έργου
Οι παρεμβάσεις για θέματα πολιτισμού, μετά το Μουσείο Τσιτσάνη και το μουσείο του Μύλου Ματσόπουλου, περιλαμβάνουν επίσης:
– τα 495.500 € από το «Πράσινο Ταμείο» για την πλήρη ανακατασκευή του «Λαογραφικού Μουσείου Τρικάλων»
– τα 913.000 € από το ΕΠ-ΥΜΕΠΕΡΑΑ για τη μετατροπή του «Αρχοντικού Κυρνάσιου» σε «Σπίτι Τρικαλινών Καλλιτεχνών».
Μαζί με τα το 1,9 εκατ. € για τις δύο αποθήκες, δίνονται συνολικά σχεδόν 2,5 εκατ. ευρώ για τη στέγαση του πολιτισμού στα Τρίκαλα
Από το γραφείο Τύπου του Δήμου Τρικκαίων