Αναθεωρημένη μελέτη, μετά τις απαραίτητες διορθώσεις, ώστε το έργο να προχωρήσει χωρίς άλλη καθυστέρηση
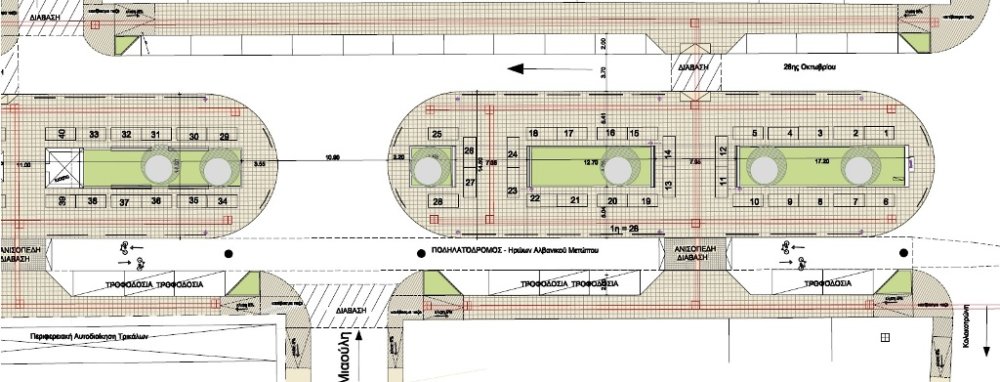
Με ανανέωση της πρότασης για χρηματοδότηση από το Πράσινο Ταμείο, επανήλθε ο Δήμος Τρικκαίων σχετικά με τη μεγάλη ανάπλαση στη λαϊκή αγορά. Μια ανάπλαση που αλλάζει την πόλη, αναμορφώνει το κέντρο της, τακτοποιεί την υπάρχουσα κατάσταση και δίνει ώθηση για το εμπορικό της κέντρο. Σε συνδυασμό με το πρόγραμμα Open Mall, για το οποίο ήδη εκπονεί τη σχετική μελέτη, ο Δήμος Τρικκαίων εκσυγχρονίζει συνολικά τα Τρίκαλα. Η υπόθεση με τη λαϊκή αγορά θα είχε ήδη λήξει, αν δεν είχε εμφανιστεί η ανάγκη διορθώσεων με βάση τους όρους της πρόσκλησης σε ζητήματα χωροταξικά. Η λύση που προκρίθηκε, ήταν η τροποποίηση της μελέτης, προκειμένου άμεσα αυτή να επανακατατεθεί. Με την απόφαση του Σώματος και αφού έχουν γίνει ήδη οι συζητήσεις με το Πράσινο Ταμείο, η μελέτη με προϋπολογισμό 585.000€ οδεύει για έγκριση.
Βάσει της εισήγησης, η νέα πρόταση προωθεί την περιβαλλοντική αναβάθμιση της περιοχής με:
– τη μείωση της ασφάλτου,
– την ταυτόχρονη αύξηση των πεζοδρομίων, και
– την ανάδειξη του πρασίνου στις θέσεις των υφιστάμενων δεντροφυτεύσεων εντός των νησίδων.
Επίσης, οι γενικότερες κυκλοφοριακές ρυθμίσεις σε οχήματα, πεζούς και χώρους στάθμευσης στην περιοχή παρέμβασης βελτιώνουν την αστική ροή. Μόλις ολοκληρωθεί η διαδικασία έγκρισης, ακολουθεί η υλοποίηση του έργου, με διαγωνισμό που θα προκηρύξει ο Δήμος Τρικκαίων.
Η μελέτη θα υποβληθεί με τίτλο «Ανάπλαση-αναβάθμιση της περιοχής της υπαίθριας λαϊκής αγοράς στο κέντρο της πόλης των Τρικάλων», η οποία πληροί τα κριτήρια και τους όρους του Μέτρου 1 με τίτλο «Σύνθετες αστικές αναπλάσεις», του άξονα «Αστική Αναζωογόνηση 20187» , του Χρηματοδοτικού Προγράμματος του Πράσινου Ταμείου.
Από το γραφείο Τύπου του Δήμου Τρικκαίων
